各教學單位:
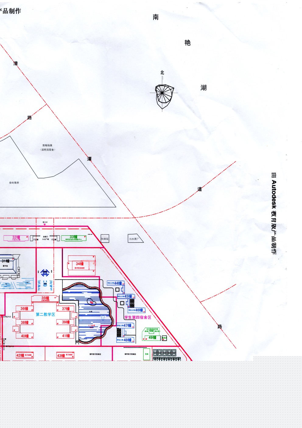
根據學院統一安排,二期新建樓群已編號,現對主要教學場地作以下說明:
一、 二期教學主樓(原排課系統中的27號樓)編為35號樓
二、 二期計科系樓(原排課系統中的26號樓)編為36號樓
三、 二期數理系樓(原排課系統中的25號樓)編為37號樓
四、 二期電子系樓(原排課系統中的24號樓)編為38號樓
五、 二期藝術系樓(原排課系統中的23號樓)編為39號樓
六、 二期機械系樓(原排課系統中的22號樓)編為40號樓
七、 二期建工系樓(原排課系統中的21號樓)編為41號樓
八、 生化樓編為34號樓
九、 實訓中心西樓編為42號樓
教學場地的具體分布圖見附表,為保證新學期開學教學活動的順利進行,請各教學單位務必在開學前組織教師、學生熟悉教學場地。
附件:1、
二期樓宇分布圖.jpg
教務處
2012年8月29日

